在杭州拥江发展的黄金轴线上,奥体板块始终占据着城市价值的顶峰。作为滨江集团与兴耀房产联袂打造的静奢美学作品,
项目总建筑面积约7.98万㎡,容积率低至约1.8,规划仅232户纯粹圈层,融合滨江豪宅基因与兴耀独立美学理念,成为奥体核心区稀缺的“高低配”墅境住区。
其距地铁7号线米即达规划中的龙湖天街,2站直达奥体中心,3站抵SKP,以“黄金十字轴”区位执掌城市发展脉搏。兴耀松川境售楼处电线
项目坐落于建设四路与金鸡路交汇以东约150米,双地铁(7号线号线米,快速链接奥体中心、钱江新城等核心商圈,风情快速路、江南大道等主干道构建立体路网。
周边汇聚龙湖天街(规划约10万方)、奥体印象城、SKP(建设中)等顶奢商业综合体,步行可达距离内满足高端消费需求,形成多中心购物矩阵。
西侧信息港小镇集聚科大讯飞、微医等500余家科技企业,7家上市公司与30余家独角兽企业扎根,高净值人才流入为板块提供强劲租赁与增值支撑。
以北宋《溪山行旅图》为灵感打造“松川十一境”园林,近享西湖群自然景观,融合城市繁华与自然谧境,重构现代人居诗意场景。
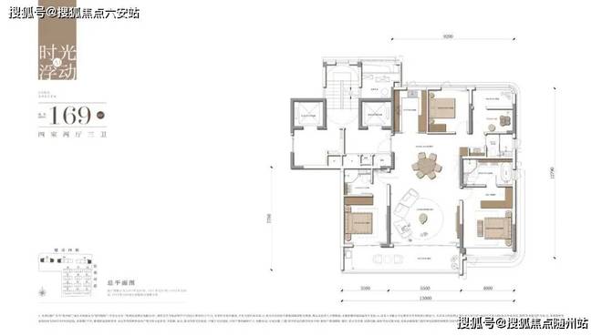
通过北阳台内包、飘窗赠送等技术,高层得房率最高达约93%,169㎡户型实得面积堪比常规180㎡产品,为业主节省约一个房间的成本。
约169㎡户型实现南向面宽约13米,转角飘窗观景面达7.2米;199㎡户型客厅面宽约5.8米,四开间朝南,俯瞰中轴园林与城市天际线。
199㎡户型设置“可变空间”,北向卧室可改为书房或儿童活动区;排屋地下层设多功能夹层,支持影音室、健身房等场景切换。
每户配备独立电梯厅,出入兼具私密性与归家仪式感,电梯厅面积约6㎡,提升空间实用价值。
采用“北高南低”布局,3栋17层小高层与12栋4层排屋错落分布,建筑限高50米,形成舒展滨水天际线,保障户户采光与视野。
约210米景观轴串联“松川十一境”,中央水景镶嵌《溪山行旅图》浮雕,下沉庭院设约7米流瀑与5棵造型黑松,重现宋画意境。
创新打造“阳光车库+空中花园”立体社区,车库配备特斯拉超级充电桩,人车分流2.0模式提升安全性与体验感。
约1500㎡下沉式会所“隐松庭”涵盖恒温泳池、私宴厅、书吧等,灵感源自纽约安缦酒店,成为社区社交与度假核心。
厨房配备博世五件套(含8系全嵌入式冰箱)、方太万元侧吸油烟机,另增厨余处理器、净水装置等九大件,打造米其林级烹饪体验。
公区墙面与地面全石材交付,选用雪山银狐、意大利芬迪白等奢石;全屋智能系统远程控制空调、新风、灯光窗帘。
卫生间镜柜内置美妆冰箱,守护高端护肤品;主卧双台盆+大浴缸设计,硬包背景与造型吊顶提升空间质感。
立面采用珠光青铜铝板与全面屏玻璃,大门为熔铜材质搭配25米叠级水景,每平米石材成本近万元。
滨江集团位列杭州房企TOP1,打造过金色海岸、仁恒滨江园等地标;兴耀房产以“向美而兴”理念整合GLA设计等六大国际团队。
均价约4.5万/㎡,较周边奥映鸣翠(约8.7万/㎡)价差超4万/㎡,与钱江世纪城限价4.7万/㎡形成洼地效应。
奥体南土地供应趋紧,容积率1.8的“高低配”住区渐成绝版,排屋产品占比仅18%,塑造纯粹圈层。
首开中签率约28%,当日售罄;30%客户来自省域,反映高净值群体对奥体价值的共识。
不限价后,杭州的豪宅项目纷纷卷设计、卷公区、卷用料,由杭州两大本土品牌房企滨江和兴耀联合打造的松川境也不例外。
80米宽的小区入口;约6.5米高的熔铜大门;全小区用了10余种名贵石材;园区内约1500㎡的下沉式会所在同价位项目中更是独树一帜,恒温泳池、健身房、私宴厅、瑜伽室等功能,几乎涵盖了改善家庭绝大多数的生活需求。
建筑立面上,超70%的大面积全面屏玻璃与铝板的组合,既保证了建筑的现代感,又通过材质的变化丰富视觉体验。
当然,松川境之所以能在众多改善盘中脱颖而出,靠的不仅仅是豪华公区,项目营造豪宅质感的同时,没有忽视改善家庭对居住空间的舒适度要求。
首先,松川境容积率仅1.8,是目前奥体板块在售项目中容积率最低的,这样的低容积率,使得项目整体呈现的状态更为宽阔舒朗。其次,松川境的高层房源100%南向厅堂,且栋栋皆楼王,朝南视野就是园区中央景观。
在大面宽、浅进深的单线㎡两个南厅户型,最小面宽达13米。搭配全面屏玻璃,采光通透如IMAX巨幕。
17层的小高层,更为松川境带来超90%的得房率。在你感叹空间魔法的时刻,或许已经不经意踏入它的拓展空间了。
类一梯一户的设计,让归家有了独属的仪式感,把私密等级也提高到了最大限度。
推开门即见近50㎡的餐客厅,无论是传统家庭钟爱的6人位圆桌,还是年轻人追求的极简长桌,都能妥善放置。
南向双套房分立客厅两侧,让老人房或儿童房与主卧互不干扰,每一个家庭成员的私人空间也都有了保障。
不仅有带转角的飘窗,浴缸、双台盆、大衣帽间一应俱全,还贴心的配置了美妆冰箱。
9米长2米宽的跑道式阳台,是家中的“X空间”。莳花弄草只是基础操作,露营帐篷和烧烤架也能随时安排上,甚至还能为女主人放下一台普拉提核心床。
北向拓展区可以是茶室或游戏房,也可以是一处私人藏馆。在这扇窗外,便是“奥体第一海拔”——杭州之门。
整套房子,从定制装甲门、全屋WiFi、餐客厅主卧的电动窗帘电机,到雪山银狐客厅背景墙,还有地板和大理石的多样拼花,均是交标。
厨房配有空调,油烟机还是方太万元侧吸系列,这对厨房主理人来说,全是贴心的关爱。博世五件套中,还全嵌入两台8系顶配全进口冰箱,这在杭州5万内项目中,只此松川境一家。
▰▰ 杭州 滨江·兴耀 松川境—奥体芯 天街旁 改善热盘 均价46166元/㎡ ▰▰
免责申明:文章内容综合来源于网络!如有侵权,请联系我们将第一时间处理!!


